EAA – EMRE AROLAT ARCHITECTURE | NEF GÖLKÖY EAA – EMRE AROLAT ARCHITECTURE | NEF GÖLKÖY
Location
Bodrum, Muğla
Client
Timur Real Estate Development and Investment
Date
2024
Built Area
15.000 m²
Type
Residential
Status
Built

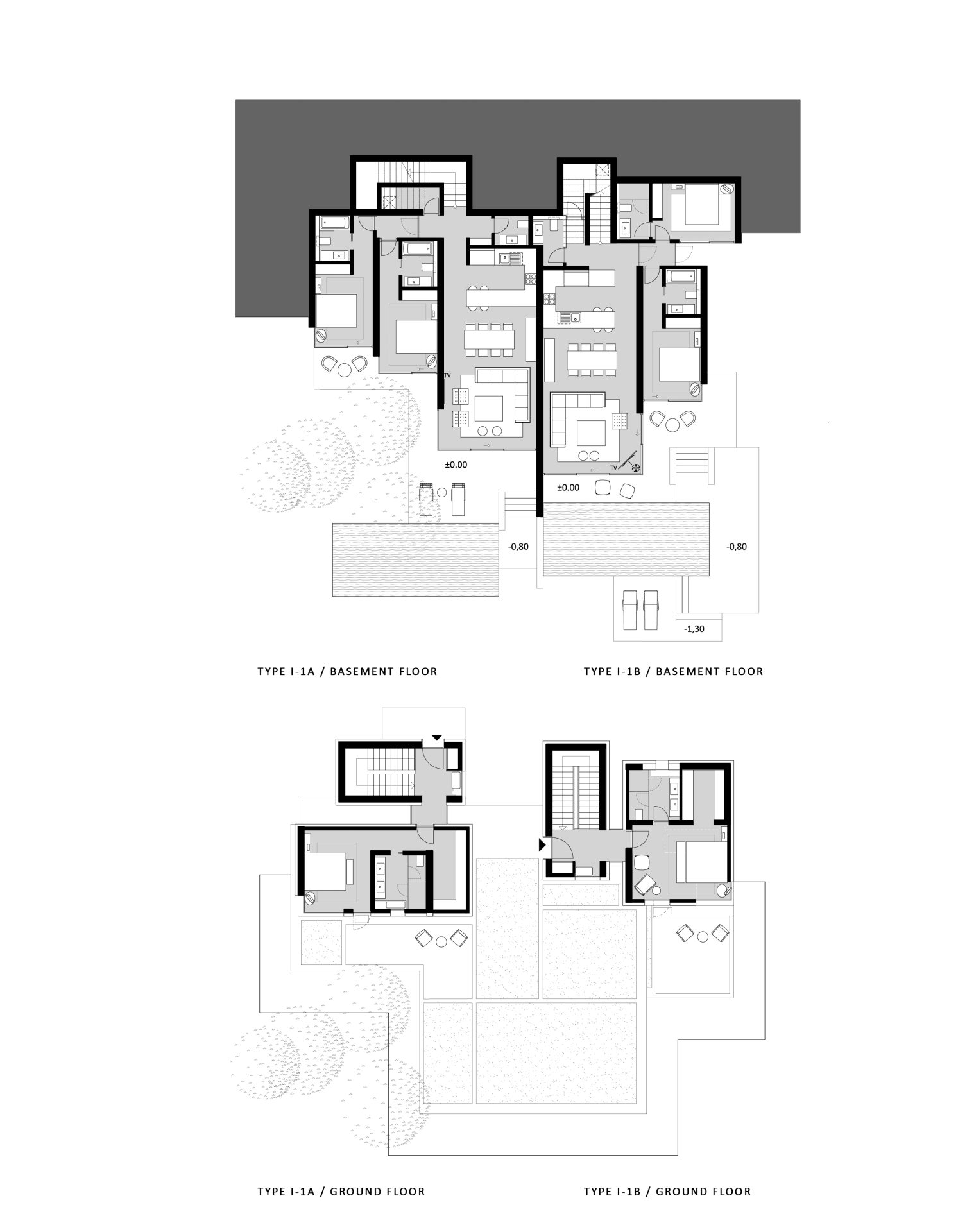
The context that the houses are located in and the nature of their relationship with the land, are the most important features in determining the design process of Gölköy Houses. The units, in an effort to avoid intervening with the natural texture and slope of the land situate itself lightly on the convenient plots within the site. The plots are handled with an approach aiming to melt into the natural texture instead of coming to forefront when viewed from the sea. The aim was to preserve the general perception of the land, conserving the matured trees and the existing topographical features by omitting any large scale interventions.

The lower floors were planned as living areas spread on different levels which were situated conveniently to the varying locations on the land. The bedroom units which were handled with a more planimetric approach were located on the upper floors. With this approach it was planned that the open and semi-open spaces acquired on various sides and levels will provide alternative uses during different times of the day. This setup also enabled the utmost visibility of the sea views from each unit.  The fragmented design language which was also a part of the general approach was enriched with the use of a natural and textured material palette. Natural stone, timber and exposed concrete were the main materials of this palette with their various colors and texture.

An undisturbed transparency was planned for the facades facing the sea. The fragmented composition approach dictated that the different units be aligned with the topography of the land and dissolve seamlessly into the piece of nature they are situated on. The scheme results in a condition of undisturbed nature, especially when viewed from the sea.

Project Location